Xagħra'da büyük bir karma kullanımlı kompleks inşa eden Karkanja Ltd, itiraz sahiplerinin "baskıcı" ve "çevresiyle uyumsuz" olarak nitelendirdiği projenin onaylanmış üç binasından birine çekme katta beş konut birimi eklemeyi öngören başvurusunu savundu.
Proje, bodrum otoparkları, daireler, ticari alanlar ve 14 odalı bir konukevi içeren üç bloktan oluşuyor. 2004 yılında yalnızca bir çöplük olan arazide müteahhitler bugüne kadar 12 imar başvurusu yaptı ve her başvuruyla projenin ölçeğini kademeli olarak büyüttü.
Bu başvuruların tamamı onaylandı; yalnızca 51 odalı bir otel inşa etmeyi öngören bir versiyonu olumsuz kamuoyu tepkileri nedeniyle müteahhitler tarafından geri çekildi.
The Shift gazetesine konuşan müteahhitler, cepheye uygulanacak taş kaplamalara dikkat çekerek itiraz sahiplerinin 4.000 metrekarelik arazinin yakınlardaki tarihi alanlara olan etkisine ilişkin kaygılarını reddetti.
Şirket, "Her inşaat çevresini bir ölçüde etkiler; ancak şirketimiz politika olarak Gozo'daki tüm projelerini, hassas Kentsel Koruma Alanı'nda olsun ya da olmasın, geleneksel taş cephelerle inşa eder" açıklamasını yaptı.
Şirket ayrıca şunları ekledi: "İç yol cepheleri dahil aynı uygulama burada da yapılıyor; bu da bölgenin tipik Gozo kentsel karakterini güçlendirecek. Proje aynı zamanda adalardaki en yüksek enerji verimliliği ve su geri dönüşümü standartlarına uyuyor."
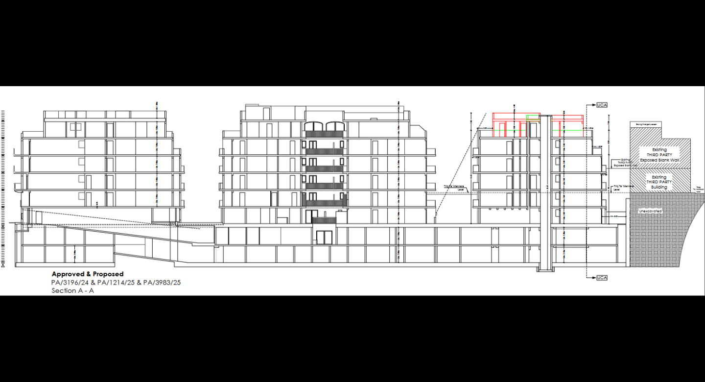
Aşağıdaki tasarımlar, projenin son üç imar başvurusu boyunca nasıl geliştiğini gösteriyor. Renkli çizgiler her başvuruyla yapılan yeni eklemeleri işaret ediyor.
Aşağıda gösterilen tüm başvurular onaylandı; yalnızca son başvuru olan PA/1721/26 — "çekme kat seviyesinde beş konut birimi inşa etmek" — henüz İmar Otoritesi'nin (PA) dava sorumlusunun tavsiyesini bekliyor.


Şirket, tek bir kapsamlı imar başvurusu yerine neden bu yöntemi benimsediği sorulduğunda, sözcüsü tüm büyük projelerin "farklı aşamalara bölündüğünü" ve "2004'ten bu yana birçok politika değiştiği için birden fazla başvurunun gerekli olduğunu" söyledi.
İtiraz sahiplerinin öne sürdüğü tarihi miras kaygılarına gelince — itirazda Nazzarenu Kilisesi'nin ve yakındaki bir İkinci Dünya Savaşı sığınağının yakınlığı gerekçe gösterilmişti — şirket, "Önerilen arazimiz İkinci Dünya Savaşı sığınağının oldukça ötesinde kalıyor ve Nazzarenu Kilisesi'nden araya giren binalar ve bir pjazza (meydan) ile ayrılıyor" dedi.
Şirket şunu da ekledi: "Kamusal bakış noktalarından arazimiz Nazzarenu meydanı gibi önemli alanların oldukça altında kalıyor ve yalnızca üst iki kat görünüyor. Meydan ile arazimiz arasındaki mevcut tek katlı üçüncü taraf bina bölgedeki baskın yüksekliğe ulaştığında, projemiz o bölgeden tamamen görünmez hale gelecek."
Sakinlerin itirazında, arazinin kiliseden yalnızca 27 metre uzakta olduğu vurgulandı. Kilisenin mimari ve tarihi değeri nedeniyle Malta Adaları Kültürel Mülk Ulusal Envanteri'nde yer aldığı belirtildi.
İtirazda ayrıca, "Arazinin büyük bölümü, bir İkinci Dünya Savaşı sığınağının varlığı nedeniyle Acil Koruma Emri'nin tampon bölgesi içinde kalıyor" denildi ve bölge için yerel planların üç kat ve üç sıra yükseklik sınırlaması öngördüğü belirtildi.
Malta Yürüyüşçüler Derneği de ayrı bir itiraz sunarak, projeye çekme kat eklenmesinin kültürel mirası "uyumsuz" gelişmelerden korumaya yönelik imar politikasına aykırı olacağını savundu. STK ayrıca projenin çevresini nasıl etkileyeceğine dair yeterli bir değerlendirme sağlayacak sokak görünümü analizinin bulunmadığını da belirtti.
STK şunları ekledi: "Bu belirli arazide kat yüksekliği artışı talebinin önceki bir başvuruda reddedildiği kayıtlara geçmiştir. İmar Otoritesi, burada yükseklik artışının kabul edilemez olduğunu zaten belirlemiştir. Aynı artış için yeni bir başvuru numarasıyla yeniden başvurmak idari kaynakların israfıdır ve Kültürel Miras Müfettişliği'nin önceki uzman tavsiyesini görmezden gelmektir."